中古住宅

掛川市中 中古住宅

掛川市中
一条工務店施工の和風建築になり築30年ながら綺麗にお使いになっていらっしゃいます。敷地が220坪余りと広くガレージがあると同時に駐車は7―8台十分可能になります。空家にて随時内覧が可能となっておりますのでお気軽に仰って下さい。


お問い合わせください。
株式会社トダックス
〒436-0112 静岡県掛川市細谷427
物件詳細
物件番号:F200001 更新日:2025年12月16日
物件名 掛川市中 中古住宅
価格 1850万円
土地面積 752.98m2(約227.77坪)
建物面積 225.67m2 (約68.26坪)
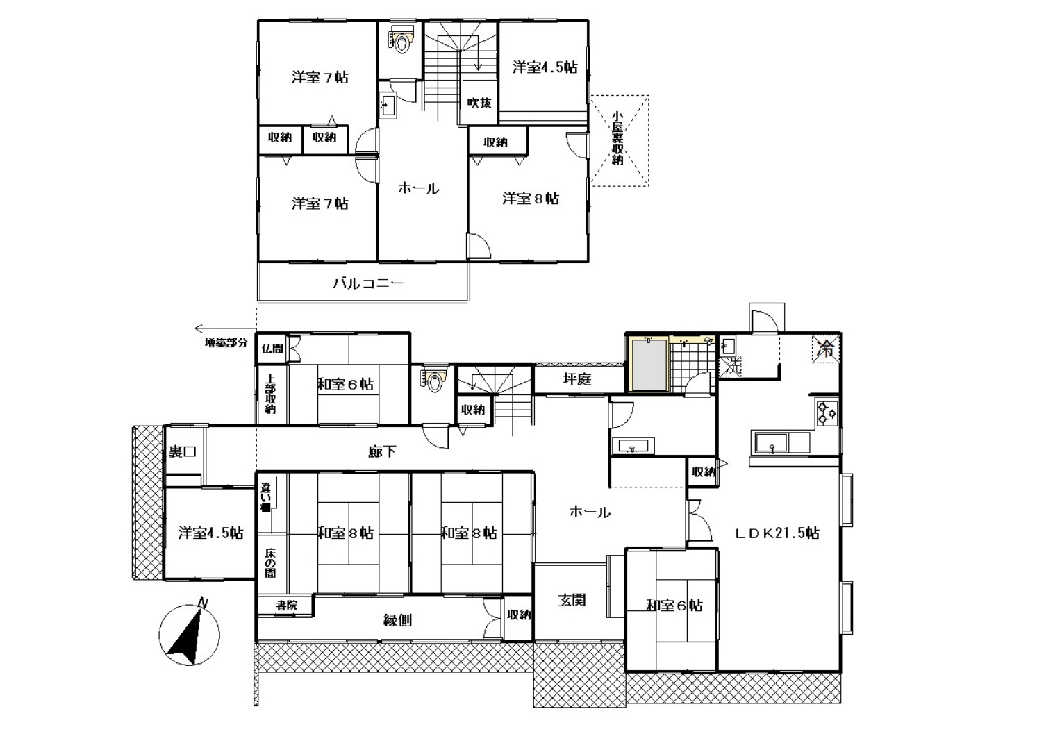
間取り 9LDK
構造 木造瓦葺 2階建
築年月日 平成7年8月築
住所 掛川市中
学区 中小学校、大浜北中学校
備考 一条工務店施工の和風建築になり築30年ながら綺麗にお使いになっていらっしゃいます。敷地が220坪余りと広くガレージがあると同時に駐車は7―8台十分可能になります。空家にて随時内覧が可能となっておりますのでお気軽に仰って下さい。
その他 西側増築部のみ傾きが見られていて未登記になります。各所リフォーム見積も承りますのでお気軽にお申し付けください。
取引態様 仲介
お問い合わせフォーム
名前必須
Eメール必須
電話番号任意
本文必須

個人情報の取り扱いについて同意する。

トダックス不動産
〒436-0112 静岡県掛川市細谷427
Fax: 0537-26-2123