
| 物件名 | 袋井市富里 新築住宅1号棟 |
|---|---|
| 価格 | 2380万円 |
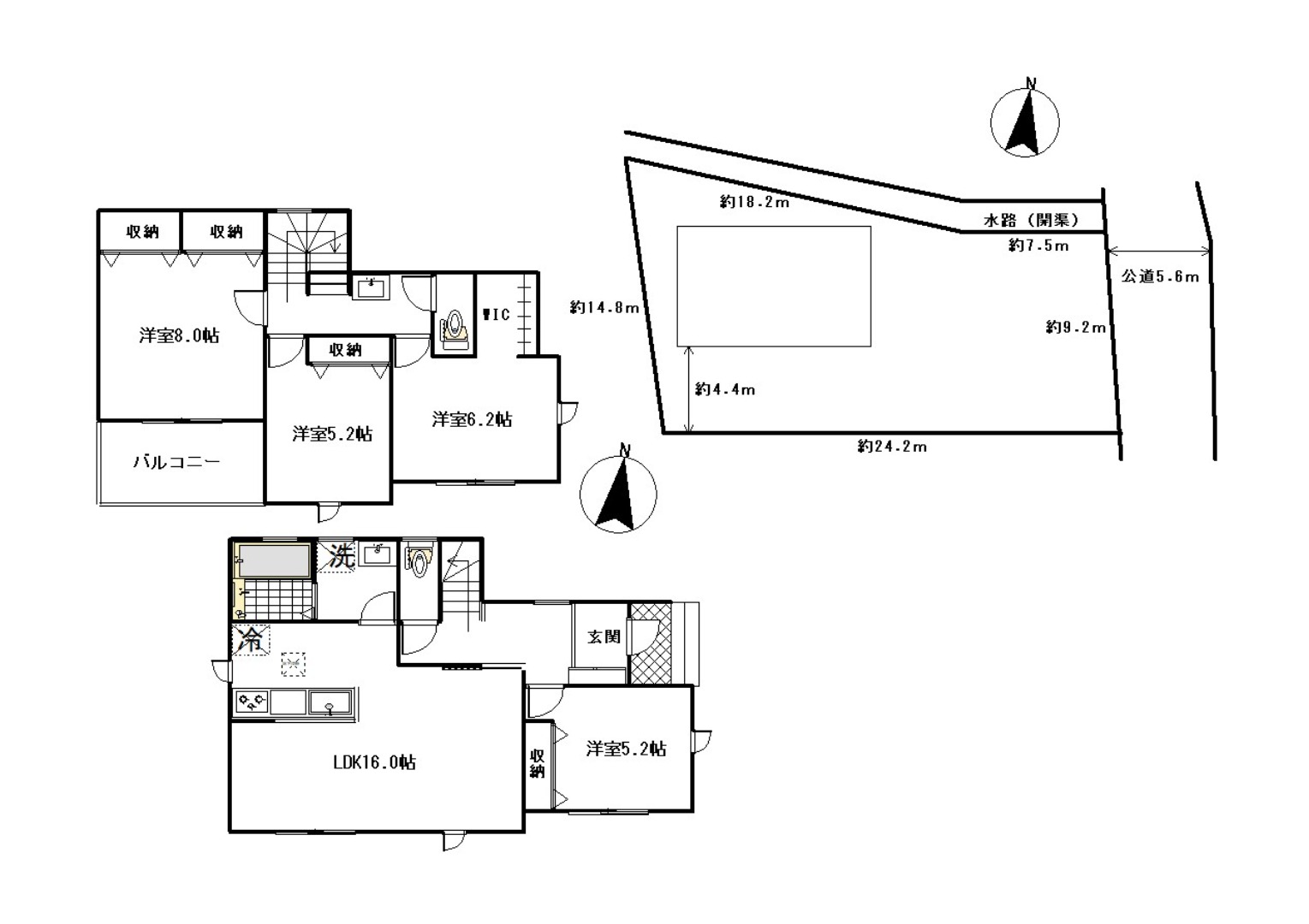
| 土地面積 | 263.73㎡(79.78坪) |
| 建物面積 | 101.85㎡(30.81坪) |
| 間取り | 4LDK |
| 構造 | 木造アスファルトシングル葺 2階建 |
| 築年月日 | 令和8年2月完成予定 |
| 住所 | 袋井市富里 |
| 学区 | 浅羽北小学校、浅羽中学校 |
| 備考 | 建築確認番号:第125-0420-56717号
長期優良住宅、性能表示住宅にて安心材料が揃っています。宅配ボックス付きのポストになります。 |
| その他 | 南側に2号棟がありますが全室南配置にてある程度明るさや開放感を確保できていると思います。駐車場は並列3台+α可能な間口であり段差はほぼありませんので出入りし易いと思います。2階にカウンター手洗いが付いてるタイプになります。 |
| 取引態様 | 仲介 |
