
| 物件名 | 袋井市富里 新築住宅2号棟 |
|---|---|
| 価格 | 2580万円 |
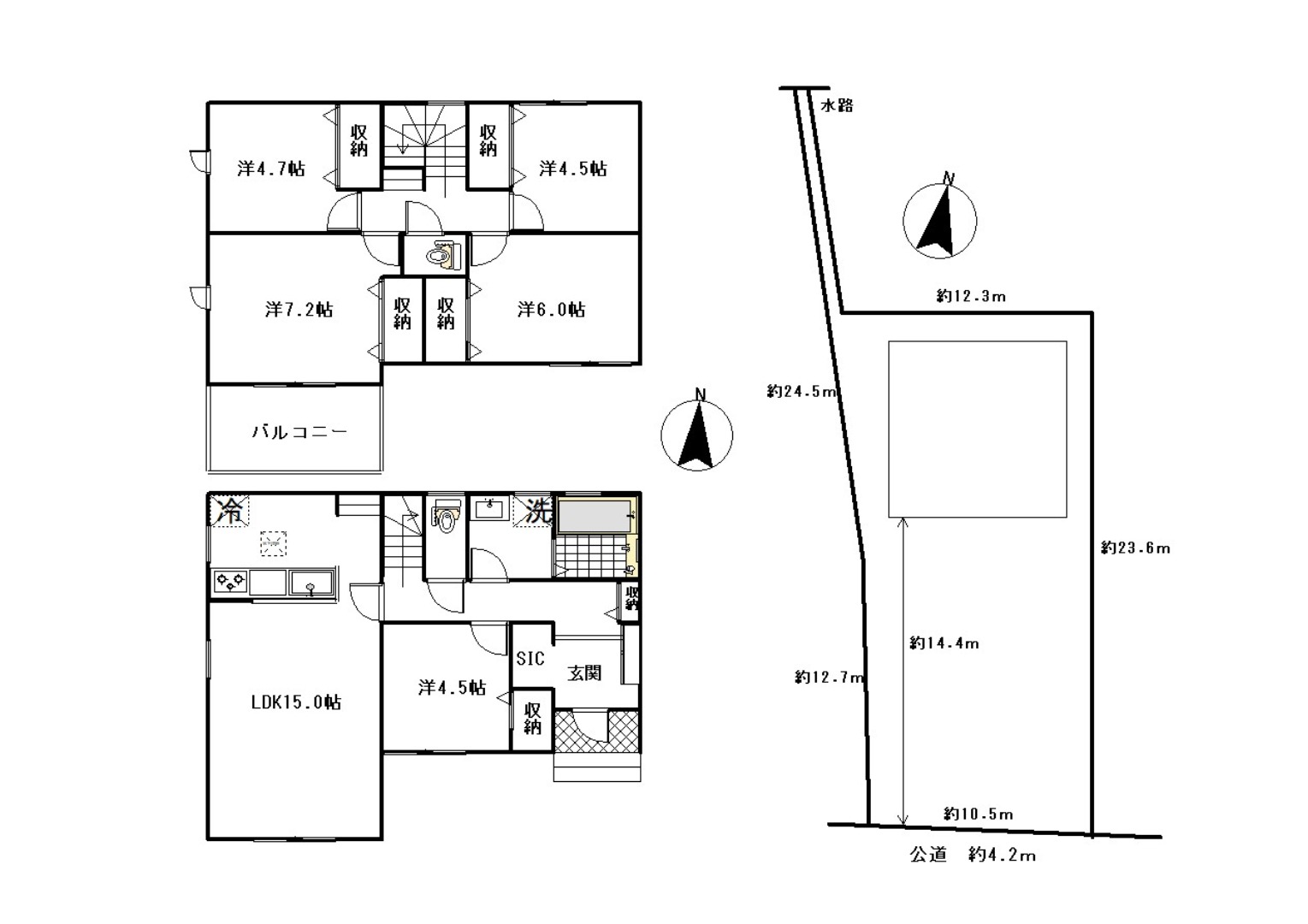
| 土地面積 | 274.84㎡(83.14坪) |
| 建物面積 | 104.33㎡(31.56坪) |
| 間取り | 5LDK |
| 構造 | 木造アスファルトシングル葺 2階建 |
| 築年月日 | 令和8年2月完成予定 |
| 住所 | 袋井市富里 |
| 学区 | 浅羽北小学校、浅羽中学校 |
| 備考 | 建築確認番号:第125-0420-56713号
小学校まで約1.6㎞、中学校まで約2.7㎞、スーパーまで約1.4㎞ |
| その他 | 南向きの明るいお宅になり駐車場は3-5台分はゆうに止められますし庭と併せて約46坪ほどの広さがあります。バス停まで歩いて6分ほどになり駅までのアクセスは確保されています。長期優良住宅、性能評価取得にて安心安全になります。 |
| 取引態様 | 仲介 |
