
| 物件名 | 袋井市富里 新築住宅3号棟 |
|---|---|
| 価格 | 2780万円 |
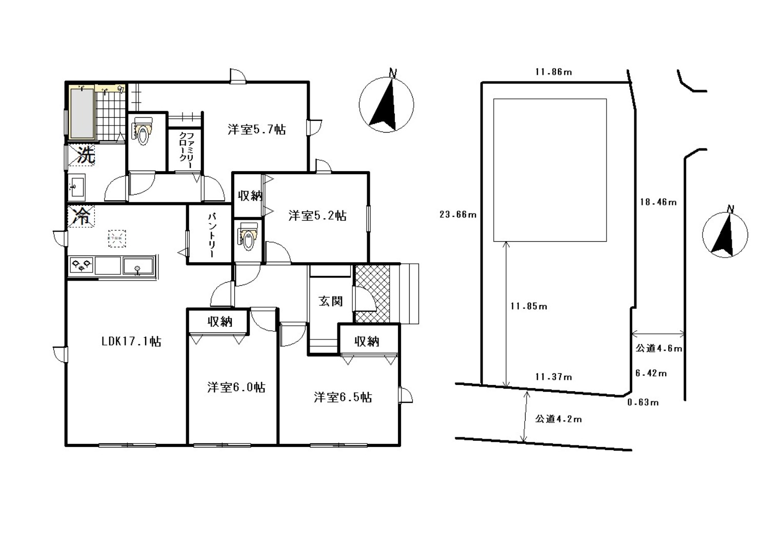
| 土地面積 | 295.75㎡(約89.46坪) |
| 建物面積 | 96.88㎡(約29.31坪) |
| 間取り | 4LDK |
| 構造 | 木造アスファルトシングル葺 2階建 |
| 築年月日 | 令和8年2月完成予定 |
| 住所 | 袋井市富里 |
| 学区 | 浅羽北小学校、浅羽中学校 |
| 備考 | 建築確認:第125-0410-55217号
長期優良住宅、性能評価取得住宅、24時間換気システム、宅配BOXつき |
| その他 | 89坪を超える広い敷地になり、南東角区画にて開放感あるロケーションになっています。平屋建て物件であり広い南庭に約40坪(130㎡)余りの庭&駐車スペースが広がりますので、落ち着いたゆとりある暮らしが可能になると思われます。 |
| 取引態様 | 仲介 |
